Я тесно сотрудничаю со строительными компаниями
В данном разделе Вы найдёте информацию о стоимости ремонтно-строительных работ на примере одного из проектов. Смета предоставлена моими партнерами
В данном разделе Вы найдёте информацию о стоимости ремонтно-строительных работ на примере одного из проектов. Смета предоставлена моими партнерами
Локация
г. Минск, ул. Татарская 6
Площадь
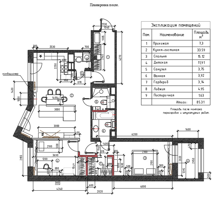
85 м2
Бюджет
71 000 у.е
Стоимость ремонтных работ
19 420 у.е.
Работа над проектом
2,5 месяца
Реализация проекта
7 месяцев
на ремонтно-отделочные работы после выполнения полного дизайн-проекта от одного из партнеров.
ПОСМОТРЕТЬ ПРИМЕР СМЕТЫПроект выполнен в классическом стиле, это один из стилей, который мало изменяется во времени в дизайне интерьера, поэтому вложения в такой стиль оправданы. Стиль отличается своей элегантностью и большим количеством элементов. Основная гамма – теплая бежевая. Проект для молодой семейной пары.
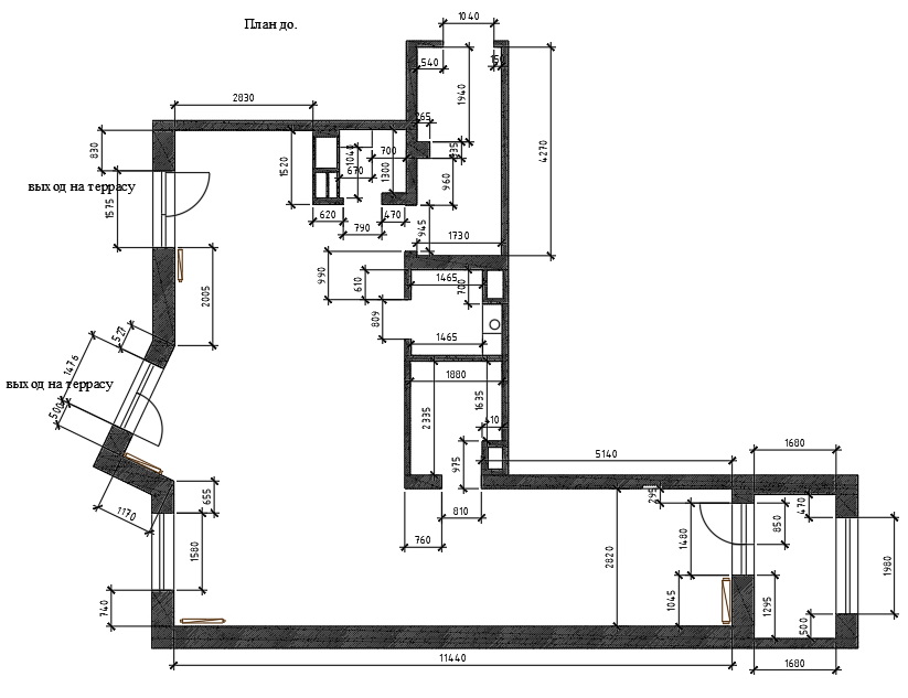
Смотрите проект 3д визуализации и чертежи к нему, на чертежах вы можете увидеть спецификации с посчитанными объемами для отделки и количеством материалов. Данные спецификации с количеством можно сравнить со сметой предоставленной одним из наших партнеров в реализации проектов.